Hawthorne Exhibit

A Design Case Study

Problem: Create a space for kids to imagine being a veterinarian that promotes learning, movement and play within a historic school house structure.

Solution: Through listening the donors at the Hawthorne Animal Hospital and learning what parts of their work they value most, Collab was able to recreate those key activities as a series of stations that children can engage with as they move through the exhibit and learn.

All photos courtesy of Wesley Law.

190514_ALBIEedwardsville-0193.jpg

Collab was commissioned to design the Hawthorne Exhibit for the Edwardsville Children’s Museum. The exhibit encourages kids to interact and role-play as veterinarians.

190514_ALBIEedwardsville-0169sm.jpg

The climbing structure is the organizing element of the entire exhibit, inviting kids to move, play and explore.

190514_ALBIEedwardsville-0014.jpg

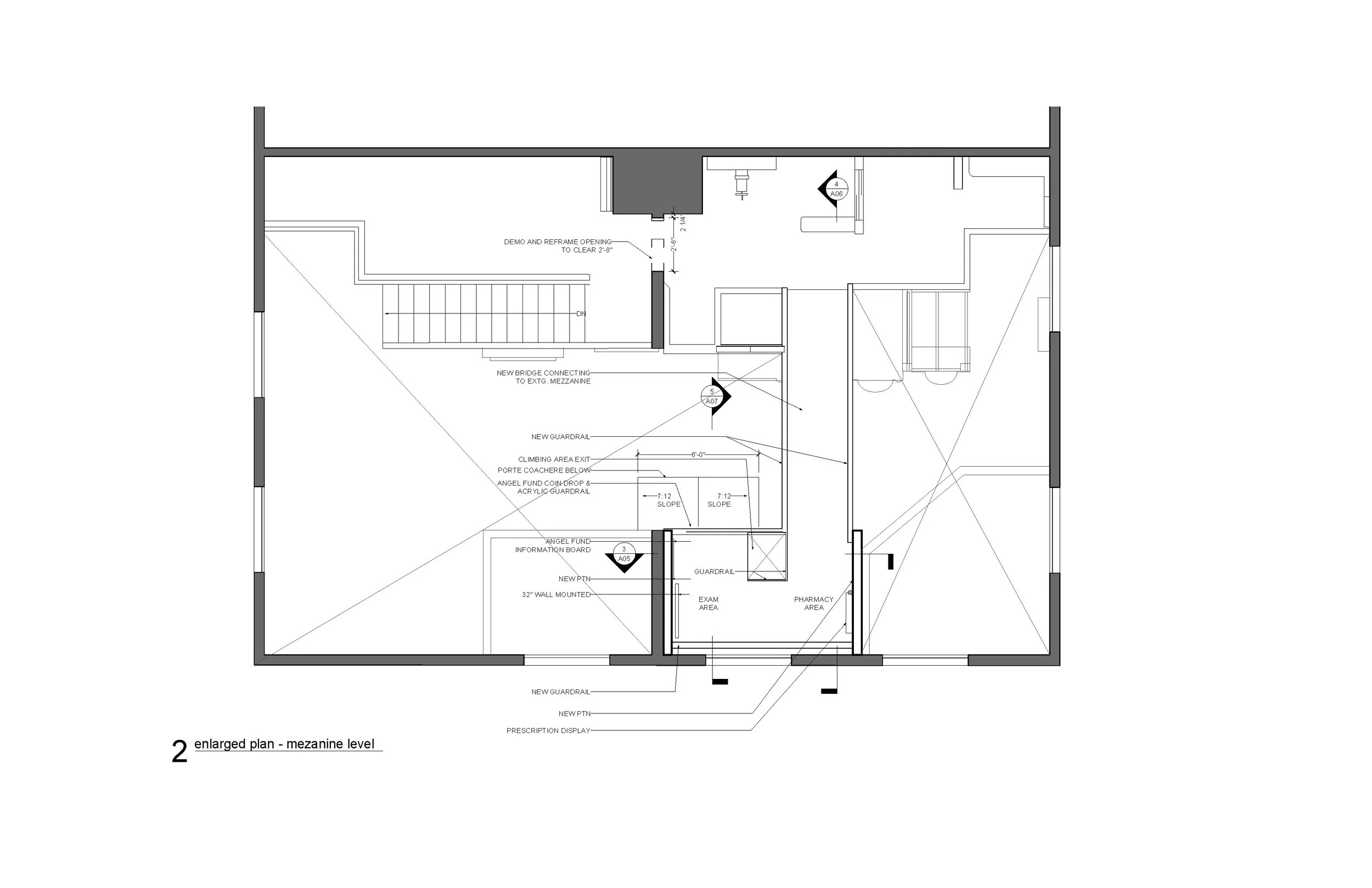
The exhibit includes a grooming area, x-ray station, pharmacy, exam area, an integrated climbing structure and bridge that connects to other exhibits in the space. The facade of the exhibit incorporates a coin drop that allows donations to make a chance filled journey to a coin back and support the Hawthorne Animal Hospital’s work caring for trained K-9 dogs working with law enforcement in the community.

The installation fits within a tight footprint within the historic school house and is designed to not obstruct the appearance of the building’s monumental double-hung windows.

2-plan 2.jpg
3-Sections.jpg
4-Sections.jpg
5-Section.jpg

The climbing structure was CNC milled by Collab and pre-fabricated by the contractor. Prefabrication improved quality and shortened on-site construction time.

6-Details-Colored.jpg
WesLaw_edwardsville-0203small.jpg
190514_ALBIEedwardsville-0083sm.jpg
Previous
Previous

Green Varnish: Art Fabrication Case Study

Next
Next

ECM Outdoor Classroom: Public Space Case Study